Skip To Content

910 Eastern Shore Drive

SALISBURY, MD 21804
  • $2,650
  • STATUS: Active
  • ON SITE: 20 Days
  • ID#: MDWC2021368
$2,650
  • 0
    BEDS
  • 0.28
    ACRES
  • 0
    BATHS
  • 0
    1/2 BATHS
Neighborhood:
Type:
Commercial-Lease
Built:
1962
County:

School Ratings & Info

Description

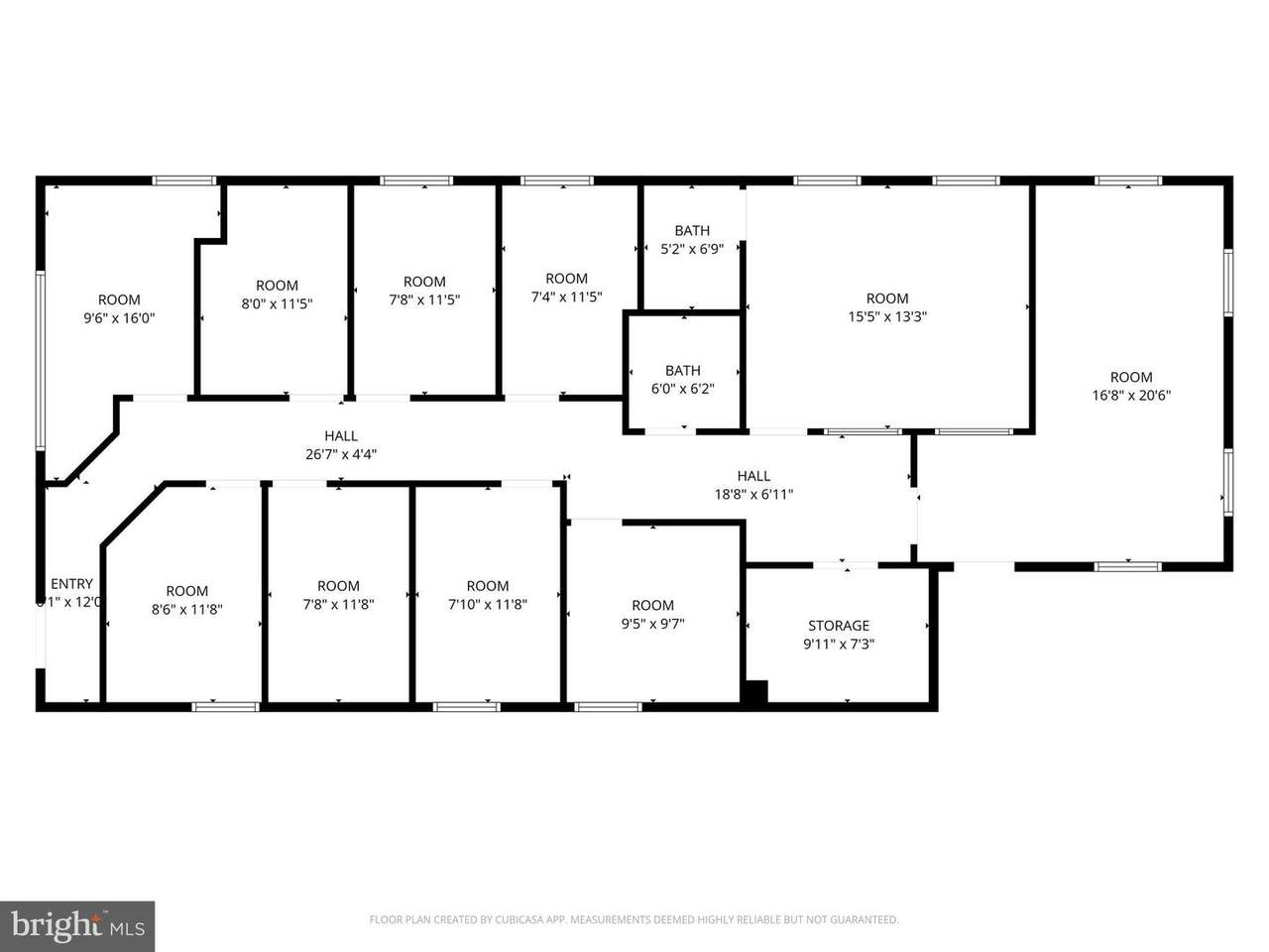
Centrally located professional office. Excellent Condition!Space layout includes a foyer, client waiting area, reception office, 7 private offices + utility room, a kitchen -break area, and 2 separate bathrooms. . Zoning is C-1 General Commercial. The landlord pays taxes and insurance. Tenant is responsible for utilities.



©2026 Bright MLS, All Rights Reserved. IDX information is provided exclusively for consumers' personal, non-commercial use and may not be used for any purpose other than to identify prospective properties consumers may be interested in purchasing. Some properties which appear for sale may no longer be available because they are for instance, under contract, sold, or are no longer being offered for sale. Information is deemed reliable but is not guaranteed accurate by the MLS or The Lee Ann Wilkinson Group | Berkshire Hathaway HomeServices PenFed Realty. Some real estate firms do not participate in IDX and their listings do not appear on this website. Some properties listed with participating firms do not appear on this website at the request of the seller. Data last updated: 2026-02-12T23:51:57.61.
www.coastaldelawarehome.com/homes/172430781
Print Image

910 Eastern Shore Drive SALISBURY, MD 21804

  • Price: $2,650
  • Status: Active
  • On Site: 20 Days
  • ID#: MDWC2021368
0
Beds
0
Baths
0
½ Baths
0.28
Acres
1962
Built
Neighborhood:
None Available
County:
Wicomico
Area:
Wicomico Southeast (23-04)
School District:
Wicomico County Public Schools
Property Description
Centrally located professional office. Excellent Condition!Space layout includes a foyer, client waiting area, reception office, 7 private offices + utility room, a kitchen -break area, and 2 separate bathrooms. . Zoning is C-1 General Commercial. The landlord pays taxes and insurance. Tenant is responsible for utilities.
Exterior Features

Construction Materials Stucco Garage YN No Parking Types Parking Lot Road Responsibility Public Road Surface Type US Highway/Interstate Roof Built-Up Water Access YN No Water View YN No Waterfront YN No

Interior Features

Cooling Central A/C Flooring CarpetVinyl Heating Heat Pump(s) Heating YN Yes

Property Features

Accessibility Features 32"+ wide Doors Central Air YN Yes Current Use Medical OfficesOfficeCommercial Electric 220 Volts Heating Fuel Electric Hot Water Electric Municipality Salisbury Navigable Water YN N New Construction YN No Number Of Units Total 1 Original MLSNumber 804470990502 Ownership Interest Other Property Sub Type Office Sewer Public Sewer Vacation Rental YN No Water Source Public Zoning GC Zoning Description General CommercialCommercial

Listing courtesy of SVN/Miller Commercial Real Estate: .


©2026 Bright MLS, All Rights Reserved. IDX information is provided exclusively for consumers' personal, non-commercial use and may not be used for any purpose other than to identify prospective properties consumers may be interested in purchasing. Some properties which appear for sale may no longer be available because they are for instance, under contract, sold, or are no longer being offered for sale. Information is deemed reliable but is not guaranteed accurate by the MLS or The Lee Ann Wilkinson Group | Berkshire Hathaway HomeServices PenFed Realty. Some real estate firms do not participate in IDX and their listings do not appear on this website. Some properties listed with participating firms do not appear on this website at the request of the seller. Data last updated: 2026-02-12T23:51:57.61.
 
https://bt-photos.global.ssl.fastly.net/brightmls/1280_boomver_2_804470990502-2.jpg https://bt-photos.global.ssl.fastly.net/brightmls/1280_boomver_2_804470990502-2.jpg https://bt-photos.global.ssl.fastly.net/brightmls/1280_boomver_2_804470990502-2.jpg
Logo
The Lee Ann Wilkinson Group | Berkshire Hathaway HomeServices PenFed Realty
16698 Kings Hwy
Lewes DE, 19958